RAUTENBACH

Gesellschaft von Architekten mbH

PROJEKTE

BÜRO

KONTAKT

BESTAND

2019-2023 Kalle Neukölln

2017-2019 Tegel Quartier

2015-2018 Schultheiss Quartier

2015-2017 Koblenzer Straße 2

2013-2014 Leipziger Straße 125

2011-2013 Haus Cumberland

2010-2012 Am Urban

2006-2009 Berlin Campus

2005-2006 Haus Holländer

2002-2004 Kollwitzstraße 57

NEUBAU

2017-2020 Wilmersdorfer Str. 59

2016-2017 HKA

2013-2014 Rathenau Karree

2009-2010 Koenigsallee 7a

2007-2008 Kanalstraße 21

2002-2003 Haus Lückhoffstraße

2000-2001 Haus Kaiserdamm

1998-2000 Haus Leibniz

1998-1999 Haus Roonstraße

AUSBAU

2007 Idee KaDeWe

2005+2009 Klosterstraße

2003-2005 Haus Witzleben

 

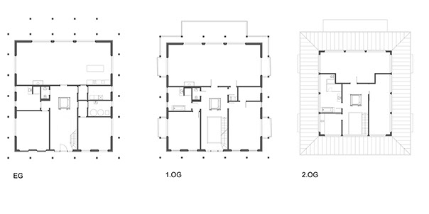
Kanalstraße 21, Berlin-Köpenick

 

Neubau einer Villa auf einem Seegrundstück am Dämmeritzsee

 

Planung und Baujahr: 2007 - 2008

 

Bauherr: Privat

 

Leistungsphasen: 1 - 9

 

 

Wohnfläche: 500 m²

>  Impressum